Inapoi la rezultate

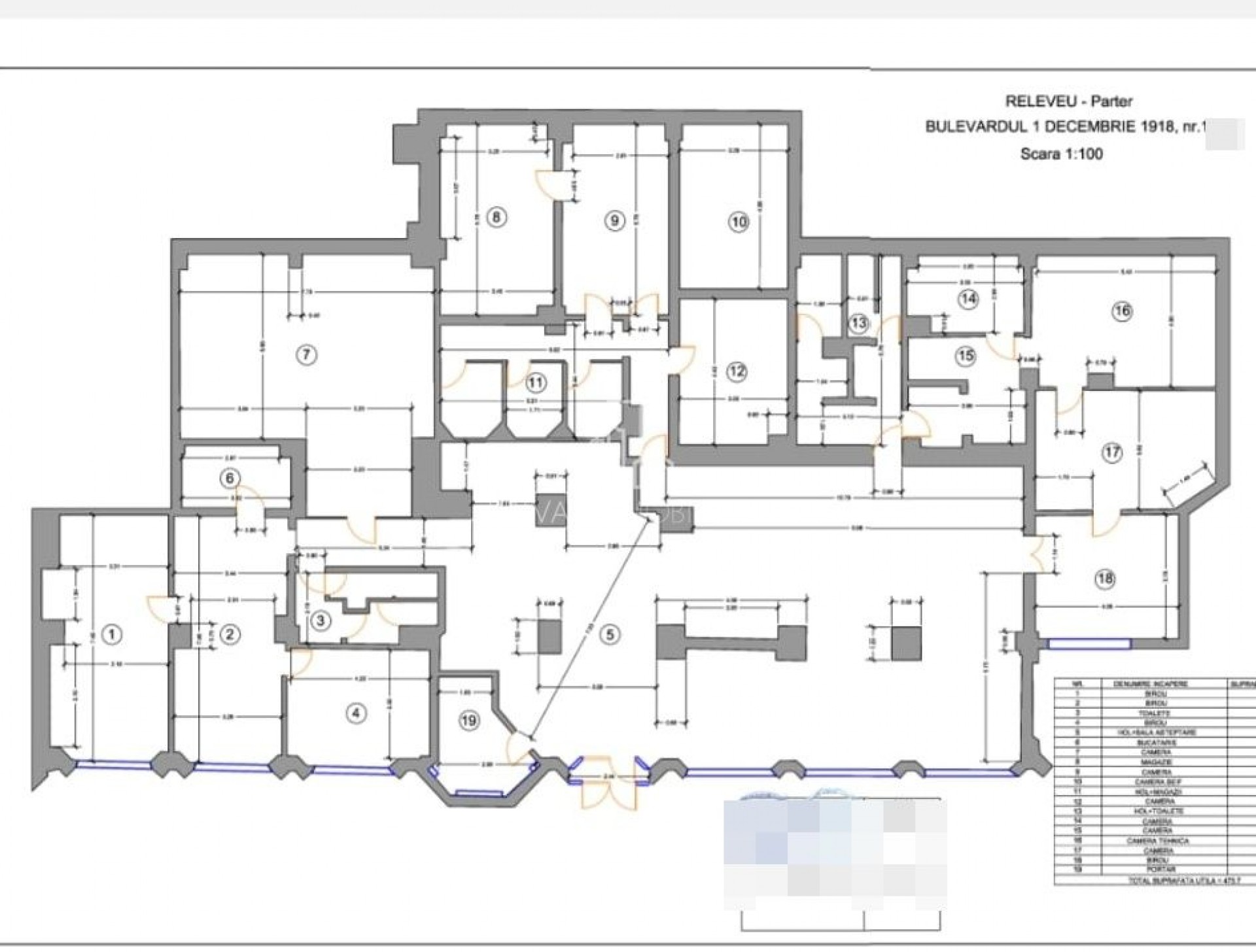
Spatiu Comercial 473 Mp De Vanzare, Bd 1 Decembrie 1918, Central

473 m2 SU
2
Etaj Parter
Targu Mures , Central , Mures
Pret vanzare:  790,000 €

Detalii

Disponibilitate
  • Imediat
Bucatarii
  • 1
Bai
  • 2
Suprafata construita
  • 500m2
Etaj
  • Parter
An constructie
  • 1990

Facilitati

Utilități teren
  • Apă
  • Canalizare
  • Curent
  • Gaz

Va oferim spre vanzare un spatiu comercial situat pe Bulevardul 1 Decembrie 1918, aproape de Mures Mall, intr-o zona centrala a orasului, beneficiaza de un vad foarte bun.
Acesta este situat la parter si are o suprafata de 473 Mp

Se poate prelua cu chiriasi ( 250 Mp fiind inchiriat), este ideal pentru investitie, fiind intr- o zona foarte buna si se preteaza pentru diferite activitati comerciale.

Cei interesati pot achizitiona imobilul la pretul de 790 000 Euro, negociabil.


Pentru acesta oferta se parcepe un comision de 2% de la Cumparator!!!!
Compania Private Imobiliare a ales cei mai buni și experimentați parteneri în realizarea tranzacțiilor: notar, avocat, evaluator imobiliar, eliberator Certificate Energetice, consultant credite imobiliare, astfel încât o dată cu cea mai bună alegere imobiliară vei primi la pachet și cele mai bune servicii necesare în tot acest proces.
Dându-ne tot interesul în a fi de ajutor maxim clienților noștri... ne ajută să obținem rezultate mai bune și, ulterior, să ne bucurăm de recomandările clienților.
Crezi că această proprietate nu corespunde în totalitate nevoilor tale?
Dacă dorești să găsești PROPRIETATEA PERFECTĂ pentru tine și nu ai prea mult timp la dispoziție, CERE AJUTORUL AGENTULUI. Acesta iți va oferi alte SOLUȚII AVANTAJOASE.
CONTACTEAZĂ-NE ACUM, nu am dat greș cu nici un client!

Ovidiu Husar

Consultant Imobiliar

Email: ovidiu@privateimobiliare.ro

Tel: 0755 015 XXX

Vezi numar

Proprietăți similare

proprietatile lunii

proprietatile lunii

SOCIAL MEDIA

Urmareste-ne pe retelele sociale pentru a afla mereu primul despre oferte noi, oportunitati, noutati, preturi si statistici din domeniul imobiliar.

Recenzii