Inapoi la rezultate

Teren 500 Mp, De Vanzare, Cu Proiect, Sancraiul de Mures

 m2 SC
500 m2 ST
Sancraiu de Mures , Mures
Pret vanzare:  85,000 €

Detalii

Disponibilitate
  • Imediat

Facilitati

Amenajare străzi
  • Străzi asfaltate
  • Iluminat stradal
  • Mijloace de transport în comun
Utilități teren
  • Apă
  • Canalizare
  • Curent
  • Gaz

Va oferim spre vanzare un teren intravilan situat in Sancraiul de Mures, Cartierul Rasaritului, langa Pestisorul De Aur, printre ultimele terenuri disponibile in acest cartier rezidential. Acesta are o suprafata de 500 mp.
Terenul beneficiazade toate utilitatile.
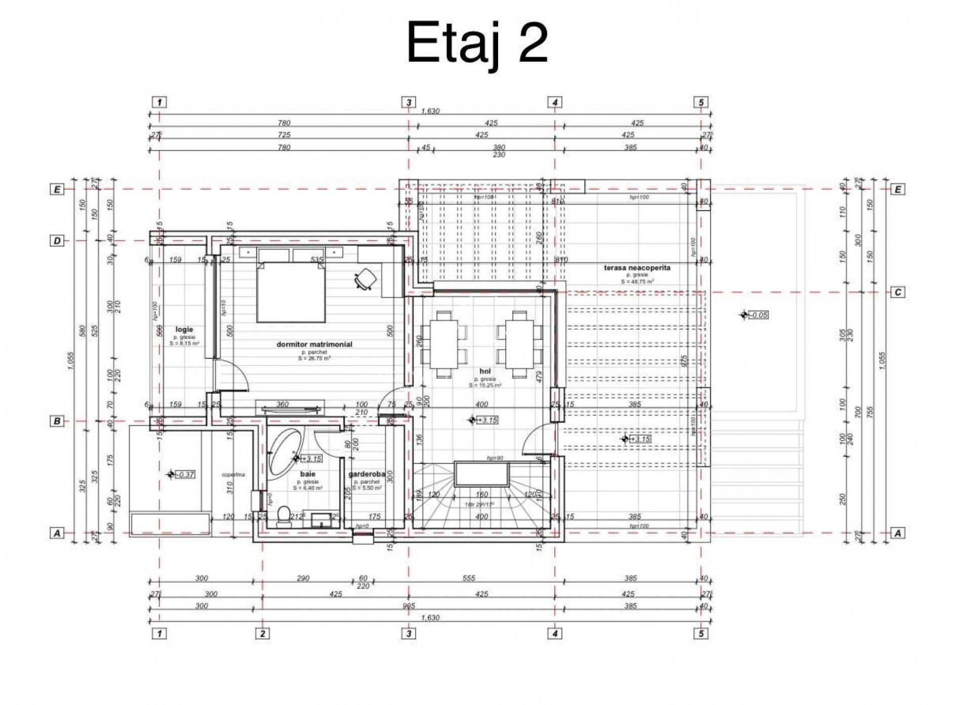
Proiectul de casa preconizeaza o casa de locuit P+2 , avand o suprafata construibila de 380 mp ,in stil mediteranean, ce include terase spatioase de 115 mp cu vedere spre natura si oras.
Imobilul beneficiaza si de un garaj generos, camere dotate cu dressinguri si bai proprii . Iar la ultimul etaj un apartament compus din living,camera, dressing, baie ,balcon si o terasa de 49 mp.

Cei interesati pot achizitiona terenul impreuna cu PROIECTUL pretul de 85 000 Euro.


Pentru clienții cumpărători, comisionul este 0%.
Compania Private Imobiliare a ales cei mai buni și experimentați parteneri în realizarea tranzacțiilor: notar, avocat, evaluator imobiliar, eliberator Certificate Energetice, consultant credite imobiliare, astfel încât o dată cu cea mai bună alegere imobiliară vei primi la pachet și cele mai bune servicii necesare în tot acest proces.
Dându-ne tot interesul în a fi de ajutor maxim clienților noștri... ne ajută să obținem rezultate mai bune și, ulterior, să ne bucurăm de recomandările clienților.
Crezi că această proprietate nu corespunde în totalitate nevoilor tale?
Dacă dorești să găsești PROPRIETATEA PERFECTĂ pentru tine și nu ai prea mult timp la dispoziție, CERE AJUTORUL AGENTULUI. Acesta iți va oferi alte SOLUȚII AVANTAJOASE.
CONTACTEAZĂ-NE ACUM, nu am dat greș cu nici un client!

Simina Cioanta

Consultant Imobiliar

Email: simina@privateimobiliare.ro

Tel: 0755 015 XXX

Vezi numar

Proprietăți similare

proprietatile lunii

proprietatile lunii

SOCIAL MEDIA

Urmareste-ne pe retelele sociale pentru a afla mereu primul despre oferte noi, oportunitati, noutati, preturi si statistici din domeniul imobiliar.

Recenzii